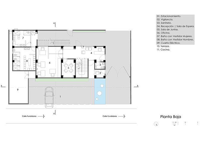
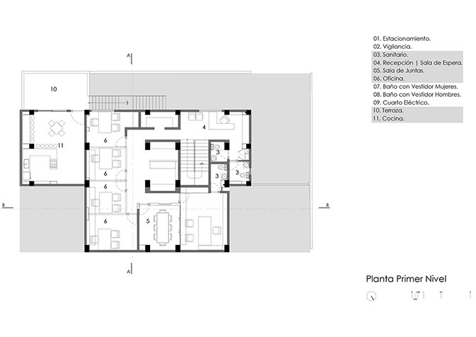
Fundidores Es un proyecto que integra distintos conocimientos al momento de proponer y conceptualizar la arquitectura. La fachada se muestra como un elemento monolítico, cerrado al exterior, con lo cual se logran espacios más privados y tranquilos, sin privar de la iluminación y ventilación natural. Se entiende el manejo y uso de planos La solides del volumen para dar jerarquías Un juego de luz y sombras que aportan elementos no estáticos a las fachadas.
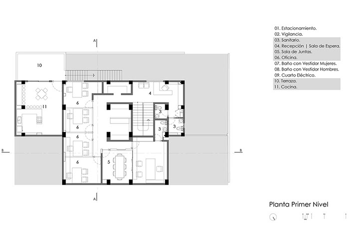
Fundidores Es un proyecto que integra distintos conocimientos al momento de proponer y conceptualizar la arquitectura. La fachada se muestra como un elemento monolítico, cerrado al exterior, con lo cual se logran espacios más privados y tranquilos, sin privar de la iluminación y ventilación natural. Se entiende el manejo y uso de planos La solides del volumen para dar jerarquías Un juego de luz y sombras que aportan elementos no estáticos a las fachadas.
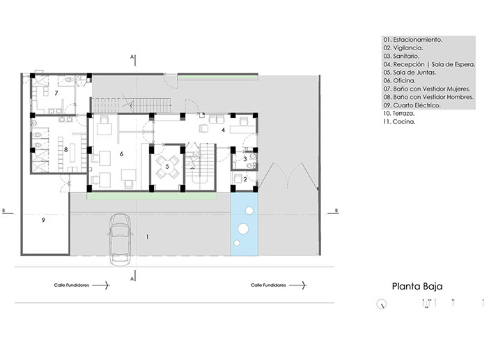
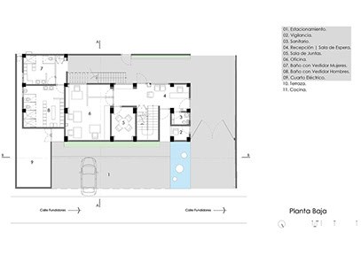
Fundidores Es un proyecto que integra distintos conocimientos al momento de proponer y conceptualizar la arquitectura. La fachada se muestra como un elemento monolítico, cerrado al exterior, con lo cual se logran espacios más privados y tranquilos, sin privar de la iluminación y ventilación natural. Se entiende el manejo y uso de planos La solides del volumen para dar jerarquías Un juego de luz y sombras que aportan elementos no estáticos a las fachadas.
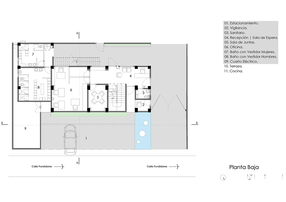
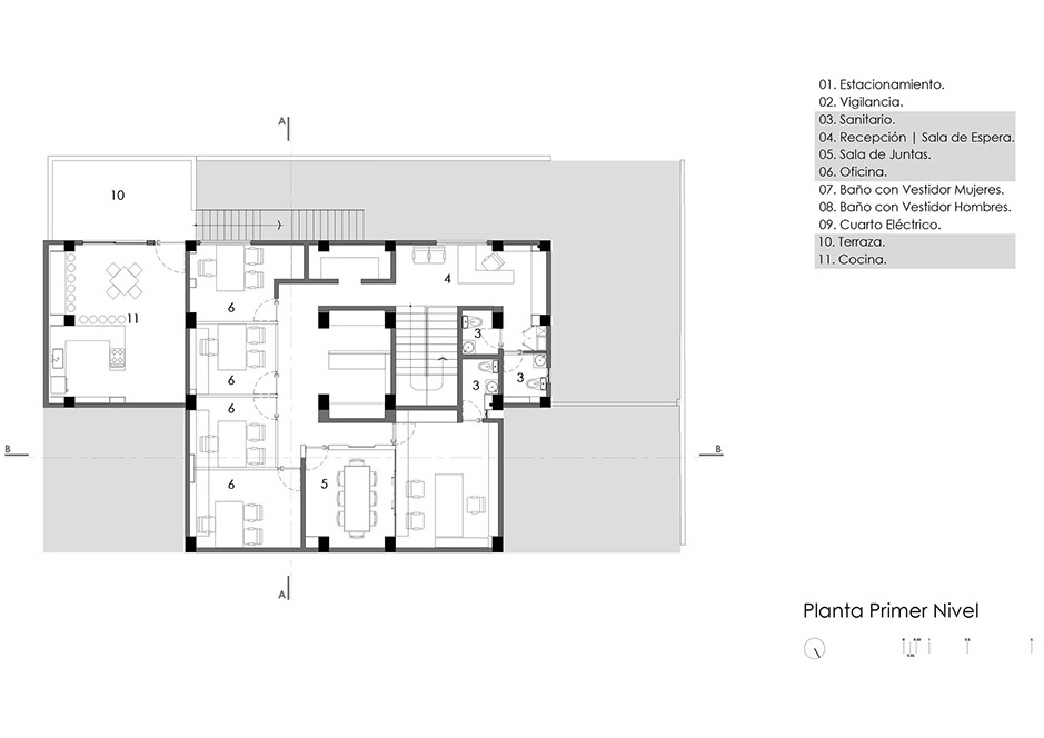
Fundidores Es un proyecto que integra distintos conocimientos al momento de proponer y conceptualizar la arquitectura. La fachada se muestra como un elemento monolítico, cerrado al exterior, con lo cual se logran espacios más privados y tranquilos, sin privar de la iluminación y ventilación natural. Se entiende el manejo y uso de planos La solides del volumen para dar jerarquías Un juego de luz y sombras que aportan elementos no estáticos a las fachadas.
Fundidores Es un proyecto que integra distintos conocimientos al momento de proponer y conceptualizar la arquitectura. La fachada se muestra como un elemento monolítico, cerrado al exterior, con lo cual se logran espacios más privados y tranquilos, sin privar de la iluminación y ventilación natural. Se entiende el manejo y uso de planos La solides del volumen para dar jerarquías Un juego de luz y sombras que aportan elementos no estáticos a las fachadas.